目前,对于多输出的推挽和正激变换器,主输出(一般是最大电流输出或5v电压输出)一般是采用电压负反馈的方式来进行稳压。而辅输出工作在开环状态,其导通时间受主输出反馈环控制。当线电压变化时,主输出和辅输出都能自动调整,但辅输出对主输出负载变化或辅输出本身负载变化都不能很好地调整。当主输出负载的变化引起辅输出电压改变的现象称为交叉影响。当输出电压变化最大时,辅输出电压变化可能高达80%【1】。这种电源只适用对辅输出电压精度要求不高的情况。当需要精确稳定的辅输出时,一般采用一级稳压电路方法对辅输出再次稳压,而一种更好的解决方案是磁放大器后级调节技术。本文研究了磁放大器在多输出变换器中的应用。
1,磁放大器的基本原理
磁放大器是利用可饱和磁心特性在这种磁心上绕制线圈而构成的。图(1)所示是一个典型的方形磁滞回线磁心的磁滞回线曲线图。
在磁放大器工作过程中,磁心沿着路径01234567890磁化,从1点到4点变化过程中磁心的磁化位于磁滞线斜率很大的位置,此时磁心的阻抗很大,此时磁放大器相当于一个阻断的开关。在4点位置磁心饱和阻抗为零,此时磁放大器相当于单刀开关工作在闭合状态。在一个开关周期内,磁心经了一个所谓的最小磁滞回线环路(01234567790)。控制开关的开通和关断时间,磁放大器实质等效为一个占空比可调的开关。

2 磁放大器的稳压原理
2.1磁放大器稳压的理论分析

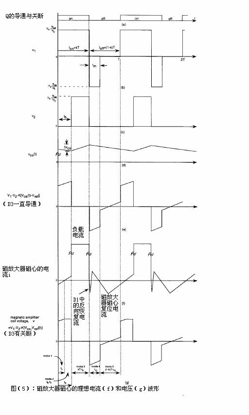
图(2)所示为一个带辅输出的正激变换器,辅输出由磁放大器调节。图中的磁放大器相当于一个占空比可以调节的开关S。如果用S来代替磁放大器线圈,图(3)为开关管的导通关断时序图。

在Q导通期间,通过控制磁放大器磁的饱和时间来控制磁放大器的“导通”时间,图中th为Q的导通时间,tb为磁放大器阻断时间,tf为磁放大器的导通时间(饱和时间),T为一个工作周期。在Q关断时,磁放大器退出饱和,当于S关断。则可得到主输出和辅输出如下[2]:


如果对输出电压 进行线性近似化,则可得到 的线性表达式为

由于输出电压在T+tb-ton时间是阻断的,进一步对输出电压线性近似化可得:

所以只要合适的控制tb,就能得到精确的输出电压。
2.2磁放大器工作状态分析:
图(2)所示的电路有五种工作模式:
假设:
(1)开关管Q的导通和关断是理想的;
(2)电路的二极管在导通的情况下,磁放大器的电流和电压的极性如图(2)所示。
Mode 1:Q导通,D2和D3导通:
此模式开始于Q开始导通,此时副边电压为
,磁放大器处于阻断状态,反向电流流过磁心并降到0。当电流到达0时,磁心的磁通从初始的B1增到B2。(对应于图(4)的磁滞回线)磁放大器绕组负载端的电压为

.
k:磁放大器控制器的增益,
Vref:参考电压
这个阶段通过磁心的电压为

tc:mode 1的工作时间。
Mode2-Q导通,D2和D1导通:
流过磁放大器的复位电流变为正的时候,D3截至,由于D2仍导通,磁放大器绕组负载端的输出端接近于地电压,此时,D1中流过复位电流,通过磁放大器的电压为

Mode3-Q导通,D1导通:
当Mode2结束时,磁心开始进入饱和状态,此时磁放大器的阻抗几乎降为0,通过它的压降也降为0,输出电压开始上升,直至 开始大于Vref。D3的阴极被箝位在
,D3截至。

Mode4-Q关断,D4,D3,和D2导通:
为防止主变压器磁心进入饱和状态,每个周期它的磁通必须通过复位绕组复位到0,此阶段磁放大器在变压器边的电压为

,此阶段持续的最大时间为

,当 的充电电压大于参考电压Vref,D3导通,负载电流立刻开始下降,直至磁放大器退出饱和,通过磁放大器的电压可以表示为

Mode5-Q关断,D3和D2导通:
当主变压器复位绕组不工作的时候,磁放大器在变压器边的电压降为0,所以

减小,磁放大器的磁通降到初始值。

2.3设计公式:
从上面的分析可知:理想的输出电压和电流波形如图(4)所示,在Mode1和2中,磁放大器的磁通从B1增大到Bs,在Mode4和5中复位到B1。如果将法拉第电磁感应定律应用到以上关系中,在磁放大器进入饱和前可到

:磁放大器绕组匝数。
:磁放大器横截面积
在绕组复位过程中,有

3 磁放大器的磁心复位与稳压
由上面的分析可知:在Q上一个周期的关断瞬间到下一个周期的导通时刻,磁心必须复位到磁滞回线的起始磁通密度B1(复位电流越大,B1就越小)。从而调节下一个周期磁放大器阻断时间(死区时间),一般,磁放大器的磁复位技术可分成电压复位和电流复位二种【4】。电压复位技术里,磁心是通过一个反压秒数来复位的,一般采用电流复位更简单,它的实质就是在Q关断时刻,给磁放大器输入一个反向电流,在Q导通时,由于D3承受反压而截至,没有电流流过磁放大器,只要反向电流设置合适,磁放大器就能够复位到所需的起始磁通密度B1.
如果输出电压上升,则tf必须减小,即tb必须上升。因此如果输出电压上升,误差放大器的输出就会下降,复位电流增加,使得初始磁通密度B1更低,从而使tb增加保持输出电压为正常值。同样,输出电压降低就会引起误差放大器输出电压的增加,同时减小了复位电流。当B1升高,tb减小,tf增加,输出也上升到正常值。
4.结论
针对DC-DC变换器多输出的辅输出不稳定的问题,本文提出的磁放大器后级调节技术可以很好的解决这个问题,而且这种技术很容易实现,目前也广泛应用在电源中,但是它也存在在高频中死区难调节和损耗很大的问题【5】,目前也有很多文献对这个问题提出了一些改进措施。